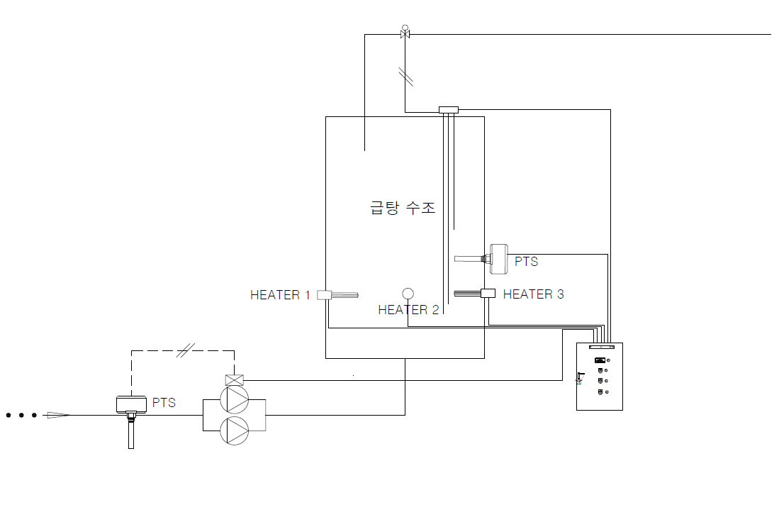
온수 저장탱크 80도 유지 제어반 제작
급탕조 의 온도 를 상시 80 도를 유지 하기 위한 제어반 제작
동작 조건
1000 x 1200 x 1500 급탕조 size
1) 급탕 조의 수위를 항시 만수위를 유지한다 . (수위 감지기 설치 )
2) 수조의 물을 만수시에 온도를 설정 하여 80도까지 상시 유지하도록 한다.
3) 3개의 히터를 수조에 설치하여 온도를 유지할 수 있도록 한다.
4) 온도 유지를 하여 순차 제어를 할 수 있도록 한다.
PTS : 배관 온도 조절기
옵션
대류 순환 펌프 제어 기능 추가 가능
순환 pump 기동 /정지 가능



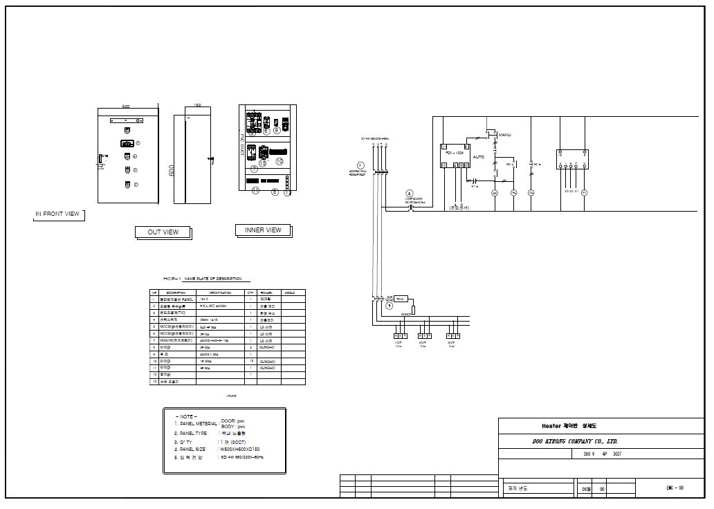
판넬 설치 자재 목록
1) MAIN 차단기 50A 4P 380V ~ 60HZ
2) 전자 접촉기 MC -9b
3) 온도 조절기 한영 넉스 ED6 온도 센서 PT 100옴
4) 수위 조절기 FLOATLESS TYPE
5) HEATER 380V 4KW 3 개소 설치


겨울이 오기 전에 준비하세요. 축사 및 하우스용으로 제작 해드립니다.
https://smartstore.naver.com/taejinshopping
태진shopping : 네이버쇼핑 스마트스토어
히팅케이블 전문, 전자기기 전문 쇼핑몰 제어기기 및 제어 SYSTEM 구축
smartstore.naver.com
'★제어반 의 종류 > 난방제어 system' 카테고리의 다른 글
| 보일러 관련 계통도 (0) | 2010.04.14 |
|---|---|
| 급탕 제어 시스템 (0) | 2010.04.14 |
